Mountain House West
  • 149b_west1

    149b_west1

  • 150b_west2

    150b_west2

  • 151b_west3

    151b_west3

  • 152b_west4

    152b_west4

  • 192b_west5

    192b_west5

  • 193b_west6

    193b_west6

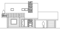
WEST
 
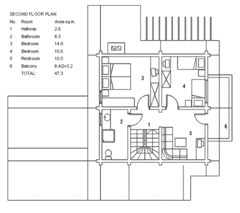
86.6 sq.m. four-room weekend house for four-member family. Architect Petras Ubartas

 

Living-area 60

Comments (0)
Sign in if you wish to comment